Oferta

Nasze schrony oferujemy w czterech, bazowych wersjach: Ekonomicznej, Standard, Komfort oraz PRO . Trzy pierwsze występuje w dwóch wariantach: o głębokości 1000 mm oraz 2000 mm. Dodatkowo, schron Komfort można zamówić wyposażony w podwójny, awaryjny właz.

Sprawdź naszą ofertę poniżej, a w razie jakichkolwiek pytań- skontaktuj się z nami! 

Przed czym ochroni nasz schron?

Oprócz ataku bronią konwencjonalną, schron może nas ochronić nawet przed atakiem chemicznym czy jądrowym. Główną rolę zabezpieczającą osoby schowane w bunkrze, zapewnia bowiem warstwa ziemi, która znajduje się bezpośrednio nad nim. Dlatego też, zalecamy umieszczenie schronu w drugim z wyżej wymienionych, głębszych wariantów.

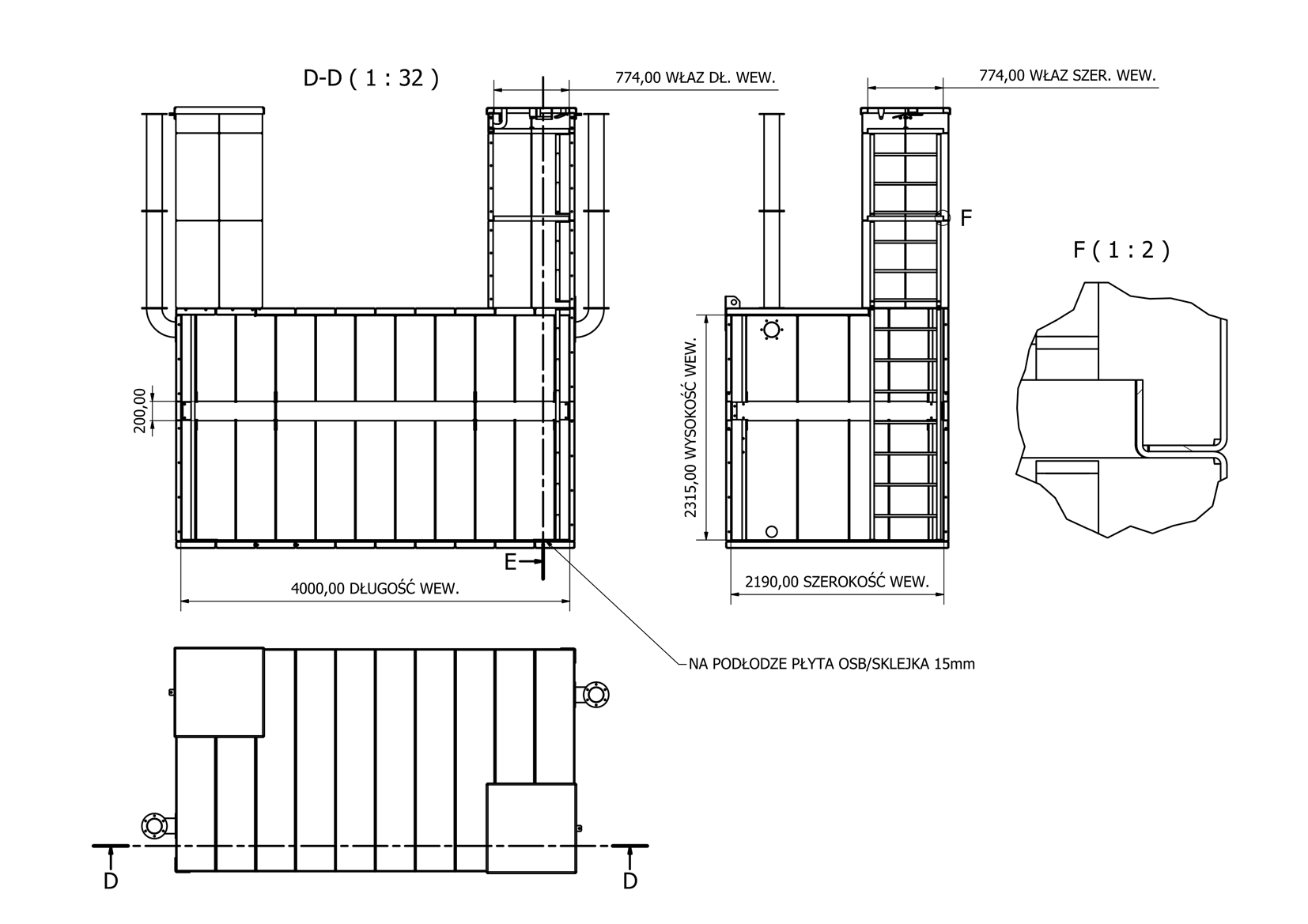
Wymiary zewnętrzne schronu:

  • Długość 4100 mm
  • Szerokość 2290 mm
  • Wysokość 2470 mm

Wymiary wewnętrzne Schronu:

  • Długość 4000 mm
  • Szerokość 2190 mm
  • Wysokość 2315 mm

Minimalne wymiary wykopu na działce:

  • Długość 6000 mm
  • Szerokość 4000 mm

Wymiary zewnętrzne schronu:

  • Długość 4540 mm
  • Szerokość 2290 mm
  • Wysokość 2470 mm

Wymiary wewnętrzne Schronu:

  • Długość 4000 mm
  • Szerokość 2190 mm
  • Wysokość 2315 mm

Minimalne wymiary wykopu na działce:

  • Długość ​105000 mm
  • Szerokość 4000 mm

Schron wykonany jest z blachy S355 grubości 6 mm, odpowiednio zagięty i dopasowany do pozostałych elementów schronu. W wersji KOMFORT i PRO: całość pokryta jest na zewnątrz pianą zamkniętokomórkową, która wyróżnia się doskonałą zdolnością do hydroizolacji i termoizolacji. Wysokie parametry wytrzymałościowe sprawiają, że cechuje ją również duża odporność na uszkodzenia o charakterze mechanicznym. Dodatkowo schron pokryty jest polimocznikiem czyli natryskowa izolacja charakteryzująca się elastycznością, sprężystością odporną na uszkodzenia mechaniczne i oddziaływanie wody oraz substancji chemicznych. Środek pomalowany farbą w kolorze RAL 1013.

Pokrywa włazu wykonana jest z ocynkowanej, wzmocnionej blachy o grubości 8 mm, szczelnie przylegającej do włazu za pomocą dwóch specjalnie zaprojektowanych, wewnętrznych zawiasów. Ich budowa uniemożliwia zewnętrzne dojście do wnętrza schronu poprzez mechaniczne uszkodzenia czy wycięcia, co dodatkowo zwiększa poziom bezpieczeństwa osób korzystających z bunkru.

Cała pokrywa, ze względu na ciężar i solidność budowy, podnoszona jest za pomocą dwóch siłowników gazowych i ryglowana jest od środka za pomocą mechanicznej zasuwy.

INSTRUKCJA MONTAŻU

Zejście do schronu odbywa się przy pomocy stalowej, komfortowej drabiny.

Po dwóch przeciwległych stronach bunkru zaprojektowaliśmy kominy wentylacyjne, do których opcjonalnie można zamontować pakiet wentylacji powietrza NBC (jądrowa, biologiczna, chemiczna).

Proponujemy system SAFE 360 z awaryjnym zasilaniem w atrakcyjnej cenie 11.000 zł idealnie dopasowany do potrzeb kubatury schronu. Jego podstawową zaletą jest nie tylko podwieszona przy suficie kompaktowa niewielka budowa ale również ochrona przed wybuchem bomby jądrowej, biologicznej czy chemicznej. System wyposażony jest w zawory przeciwwybuchowe i nadciśnieniowe.

Głębokość schronu

Każdy schron dostępny jest w dwóch wariantach głębokościowych:

Wariant A – moduł włazu o wysokości 1000 mm

Wariant B – moduł włazu o wysokości 2000 mm

Wybierając: Wariant „A” należy wykonać wykop o głębokości 3539 mm

Wybierając: Wariant „B” należy wykonać wykop o głębokości 4539 mm

Wariant Pro – zejście po schodach o wysokości 1000 mm

Zalecamy wykonanie zbrojonej płyty fundamentowej z betonu C20/25 lub C30/35

Oferta schronów

Komfort A

Wersja schronu z pojedynczym włazem o wysokości 1000 mm. Wykonany z blachy gorącowalcowanej o grubości 6 mm i pokryty pianą zamkniętokomórkową, która wyróżnia się doskonałą zdolnością do hydroizolacji i termoizolacji. Wysokie parametry wytrzymałościowe sprawiają, że cechuje ją również duża odporność na uszkodzenia o charakterze mechanicznym. Dodatkowo schron pokryty jest polimocznikiem czyli natryskowa izolacja charakteryzująca się elastycznością, sprężystością odporną na uszkodzenia mechaniczne i oddziaływanie wody oraz substancji chemicznych. Środek pomalowany farbą w kolorze RAL 1013

Komfort B

Wersja schronu z pojedynczym włazem o wysokości 2000 mm. Wykonany z blachy gorącowalcowanej o grubości 6 mm i pokryty pianą zamkniętokomórkową, która wyróżnia się doskonałą zdolnością do hydroizolacji i termoizolacji. Wysokie parametry wytrzymałościowe sprawiają, że cechuje ją również duża odporność na uszkodzenia o charakterze mechanicznym. Dodatkowo schron pokryty jest polimocznikiem czyli natryskowa izolacja charakteryzująca się elastycznością, sprężystością odporną na uszkodzenia mechaniczne i oddziaływanie wody oraz substancji chemicznych. Środek pomalowany farbą w kolorze RAL 1013

Komfort C

Wersja schronu z podwójnym awaryjnym włazem o wysokości 1000 mm. Wykonany z blachy gorącowalcowanej o grubości 6 mm i pokryty pianą zamkniętokomórkową, która wyróżnia się doskonałą zdolnością do hydroizolacji i termoizolacji. Wysokie parametry wytrzymałościowe sprawiają, że cechuje ją również duża odporność na uszkodzenia o charakterze mechanicznym. Dodatkowo schron pokryty jest polimocznikiem czyli natryskowa izolacja charakteryzująca się elastycznością, sprężystością odporną na uszkodzenia mechaniczne i oddziaływanie wody oraz substancji chemicznych.  Środek pomalowany farbą w kolorze RAL 1013  

Komfort D

Wersja schronu z podwójnym awaryjnym włazem o wysokości 2000 mm. Wykonany z blachy gorącowalcowanej o grubości 6 mm i pokryty pianą zamkniętokomórkową, która wyróżnia się doskonałą zdolnością do hydroizolacji i termoizolacji. Wysokie parametry wytrzymałościowe sprawiają, że cechuje ją również duża odporność na uszkodzenia o charakterze mechanicznym. Dodatkowo schron pokryty jest polimocznikiem czyli natryskowa izolacja charakteryzująca się elastycznością, sprężystością odporną na uszkodzenia mechaniczne i oddziaływanie wody oraz substancji chemicznych. Środek pomalowany farbą w kolorze RAL 1013

Pro

Wersja schronu z łagodnym zejściem po schodach i awaryjnym włazem o wysokości 1000 mm Wykonany z blachy gorącowalcowanej o grubości 6 mm i pokryty pianą zamkniętokomórkową, która wyróżnia się doskonałą zdolnością do hydroizolacji i termoizolacji. Wysokie parametry wytrzymałościowe sprawiają, że cechuje ją również duża odporność na uszkodzenia o charakterze mechanicznym. Dodatkowo schron pokryty jest polimocznikiem czyli natryskowa izolacja charakteryzująca się elastycznością, sprężystością odporną na uszkodzenia mechaniczne i oddziaływanie wody oraz substancji chemicznych. Środek pomalowany farbą w kolorze RAL 1013

VIAC II

Najnowszym schronem w naszej ofercie, jest schron o nazwie VIAC II.

Jest to schron o średnicy 300 mm i długości 6000 mm wykonany z rury stalowej, karbowanej grubości 5 mm. Pojedyncze wejście z włazem o wysokości 2000 mm oraz ścianą grodziową z dodatkowymi drzwiami gazoszczelnymi i odpornymi na eksplozję. Schron wyposażony jest w system wentylacji NBC z awaryjnym zasilaniem oraz 4 łóżka piętrowe.

Wysokie parametry wytrzymałościowe sprawiają, że schron cechuje się również duża odporność na uszkodzenia o charakterze mechanicznym

Zajmujemy się również budową betonowych schronów pod nowo powstałymi budynkami lub w wyznaczonym przez inwestora miejscu na działce. Służymy fachową poradą w doborze odpowiedniego wyposażenia począwszy od systemów wentylacji NBC, poprzez systemy uzdatniania wody czy systemy awaryjnego zasilania wraz z przyciskiem SOS i powiadomieniem służb.

Jesteśmy przedstawicielem na Polskę firmy VZDUCHOTECHNIK producenta profesjonalnych systemów wentylacji NBC 

Galeria Schronu VIAC II

Gotowy do transportu.
Włazy wejściowe montowane u Klienta.

Montaż schronu

Istnieje możliwość montażu bunkru przez naszą firmę w przygotowanym wykopie! O więcej szczegółów zapytaj poprzez formularz kontaktowy.

Jeśli dyskrecja jest dla Ciebie priorytetem, dobrze trafiłeś!

Propozycja naszych schronów kierowana jest do osób, dla których ważne jest nie tylko bezpieczeństwo najbliższych, ale i zachowanie wysokiej dyskrecji podczas montażu. 

Nasze schrony na targach MSPO

Dodatkowe wyposażenie schronu

Dodatkowo, możesz wyposażyć swój schron w rozmaite udogodnienia. W zakładce SKLEP znajdziesz szereg komponentów, które jeszcze bardziej poprawią komfort użytkowania bunkru. Możesz go wyposażyć w między innymi:

System wentylacji

Łóżka piętrowe montowane do ściany schronu, rozkładane na czas odpoczynku

Materace

Toaletę turystyczną z funkcją spłuczki

Lodówkę zasilaną na 230 V, 12 V oraz gaz

Kuchnię gazową

Akumulator głębokiego rozładunku

Oświetlenie LEDowe.

Profesjonalna renowacja schronów

Zajmujemy się także odnowieniem, doposażeniem i zabezpieczeniem już istniejących schronów. Z raportu NIK wynika, że większość publicznych schronów wymaga natychmiastowej modernizacji.

Zapraszamy zatem do współpracy jednostki samorządu terytorialnego, a także prywatnych inwestorów.

Oprócz odnowienia bunkrów, możemy także całościowo je zaprojektować i wybudować w już istniejących budynkach, czy też na terenie spółdzielni i wspólnot mieszkaniowych

Czytaj więcej

Zainteresowany? Skontaktuj się z nami!

Jesteś zainteresowany schronem modułowym?
Wypełnij formularz i prześlij go do nas, nasz przedstawiciel skontaktuje się z tobą aby omówić proces realizacji.

    Dziękujemy! Twoja wiadomość została wysłana!
    Przepraszamy, wiadomość nie mogła zostać wysłana. Popraw błędy i spróbuj ponownie.